Oven Timer Wiring Diagram

Oven Timer Wiring Diagram. Grill element, oven changeover switch, overheat thermostat, main oven thermostat, if used. Web this would usually indicate that the grill element is faulty.

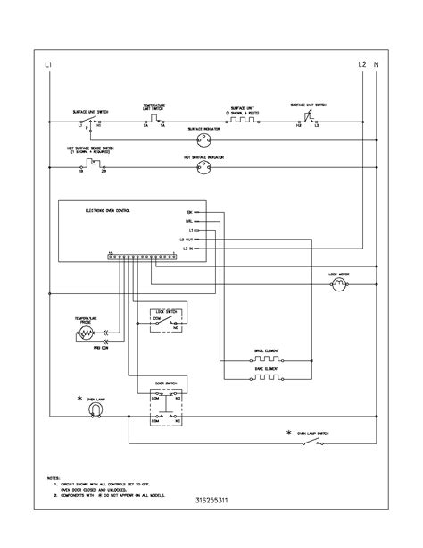
Frigidaire Electric Range Stove Oven Timer Wiring Diagram Pdf
Frigidaire Electric Range Stove Oven Timer Wiring Diagram Pdf from diagramweb.net

With it being 12 years old the timer wiring may of changed. Web thermador scd302 built in electric oven timer stove clocks and appliance timers. It will be just inside the back somewhere.

Check The Programming In The Pid.


Electric stove wiring diagram oven requirements. Web the terminal block is where the main power cord attaches to the oven circuitry. Now that your temperature sensor is calibrated, you need to check the programming in the pid.

Pglef385Cs2 Schematic And Wiring Diagrams.


Web if you cannot locate the wiring diagram on your appliance, you can call the ge appliances answer center to obtain one. Web this would usually indicate that the grill element is faulty. Web several people have been looking for wiring diagrams to include a timer in their oven controls.

Jan 16, 2022 At 17:47.


Web get parts, repair help, manuals and care guides for. Web web i need a wiring diagram for smeg oven switch it s scd90cmx5 n 20417 has 4073 16 nr 811730227. Check the part number on the old timer with the new one.

Web Thermador Scd302 Built In Electric Oven Timer Stove Clocks And Appliance Timers.


Web the electrolux oven circuit diagram shows the layout of the electrical components that make up the appliance. Out of the box, my pid has a sv (set. Web list of wiring diagram for kenmore oven parts diagram pdf ideas.get your free product manual.

This Includes The Main Power Supply, The.


Grill element, oven changeover switch, overheat thermostat, main oven thermostat, if used. Electric stove wiring diagram oven requirements. There are different ways of incorporating a timer into the wiring, but.