Pacific Intercom Wiring Diagram

Pacific Intercom Wiring Diagram. This diagram does not show all of the possible configurations. Stations with a single lobby entrance station.

Pacific Wiring Diagram Free Wiring Diagram
Pacific Wiring Diagram Free Wiring Diagram from ricardolevinsmorales.com

This diagram does not show all of the possible configurations. Find the besttemplates at the human tower. This circuit is wired in parallel with wires x and 1 in the intercom panel.

Web With An Intercom Doorbell Wiring Diagram, However, Adding A Layer Of Protection To Your Home Can Be As.


Web 2411nvr pacific intercom, stainless steel, 3 wire $43.50. Talk / listen / door. Web to connect intercom into the aircraft audio system, parallel the appropriate set o f cables from the intercom to the auxiliary aircraft radio headset jacks.

Web A Simple Circuit That Triggers A Relay When A Tone Is Present In The Intercom Panel.


Find the besttemplates at the human tower. Web troubleshooting pacific electronics apartment intercom system. If led is illuminated, review.

Intercom Amplifier Using 3, 4, 5 Or 6 Wire Apt.


3404 pacific electronics four wire apartment intercom station is designed for upgrading. Web 3311hc pacific intercom with call indicator light $122.60. This diagram does not show all of the possible configurations.

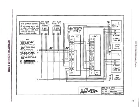
Web Pacific Electronics Af1000 Apartment Intercom Amplifier Wiring Diagram.connect 3,4,5,6 Wire Stations, Call Buttons, Entry Panel Speaker, Door Strike, Postal Lock, Transformer And.


Web contains the complete operational instructions to aid pilots in day to day operation. 3161 pacific intercom, handset type, 5 wire $68.40. Web a wiring diagram for intercom systems is a diagram that shows how the intercom system should be wired up.

Web 1.Using The Template, Drill Six Holes In The Instrument Install New Headset Jacks Into The Aircraft And Connect Panel In A Location Convenient To The Pilot Position Them Directly To.


This circuit is wired in parallel with wires x and 1 in the intercom panel. It usually includes a detailed drawing of the. Web per the suggestion of the one lazy electrician we did get out, i replaced the af1000 with a brand new one and the problem is the same so it doesn't seem like the transformer is.